Panoramica
- Updated On:
- Marzo 2, 2024
- 200 m2
Descrizione
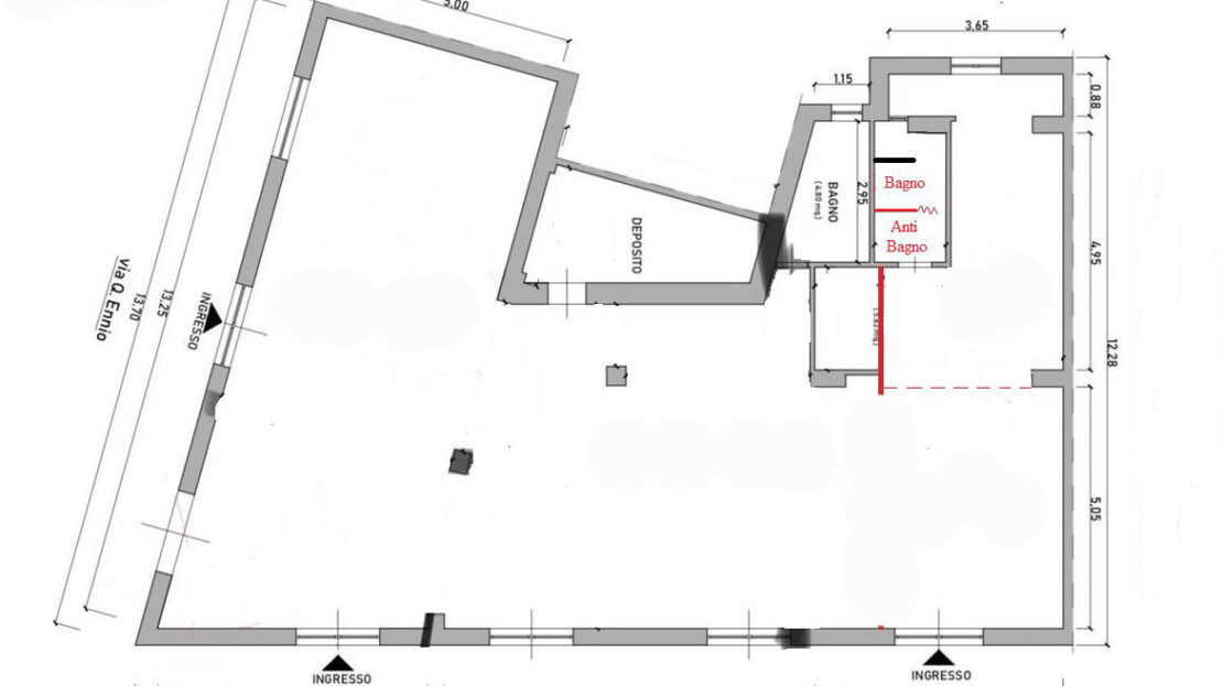
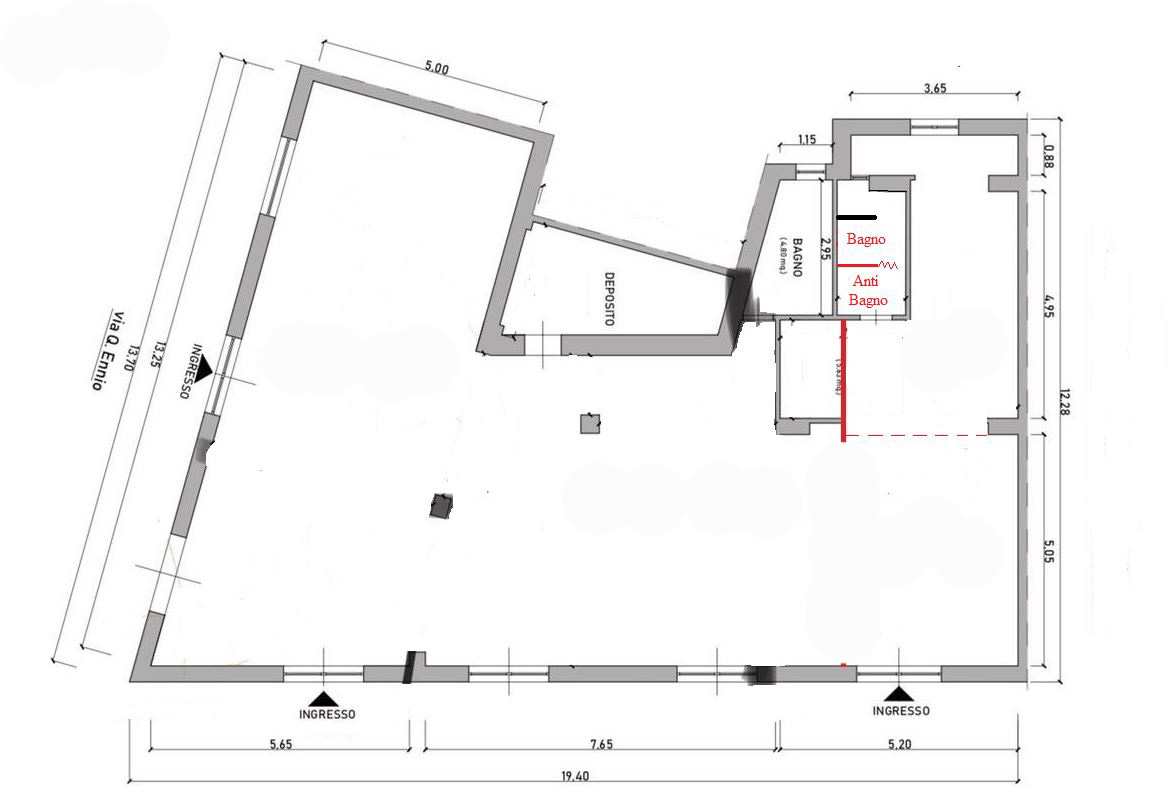
L’agenzia IPISTO propone in locazione locale ubicato in Via General Messina ad angolo con via quinto Ennio si affitta un locale commerciale angolare di duecento metri quadrati circa con cinque vetrine alla strada.
Il locale è ubicato in un punto della città ideale per qualsiasi attività commerciale, ma potrebbe esser sfruttato anche come locale per studio medico associato e/o fisioterapico.
Attualmente il locale si presenta in discrete condizioni.
Delle cinque vetrine alcune sono porte finestre ed alcune sono infissi di tipo fisso in anticorodal.
Indirizzo: Via genereal messina 40
Città: Taranto
Zona: Tre Carrare Battisti
Cap: 74123
Nazione: Italia
Apri in Google Maps
ID proprietà: 31960
Prezzo: 1.200 €
Dimensione dell'immobile: 200 m2
Dimensione del lotto di proprietà: 200 m2
Codice Immobile: 0
Balconi: No
Other Features
saracinesca






